The demand for STEM Labs in Bihar is growing as schools prepare students for a technology-driven future. Schools across Begusarai, Samastipur, Muzaffarpur, Saharsa, Patna, and Darbhanga now understand the importance of hands-on learning, robotics, coding, and innovation. Nexora STEM Labs helps schools adopt these modern learning environments with complete support, NEP 2020 alignment, and CBSE ATL standards.

Why STEM Labs in Bihar Are Important Today
Education in Bihar is changing fast. Students need more than textbooks. They need real-world skills.
STEM Labs in Bihar help schools by offering:
- Hands-on, activity-based learning
- Better problem-solving and critical thinking
- Exposure to robotics, coding, AI, and IoT
- A strong foundation for science and technology
- Higher engagement and improved learning outcomes
- Better school branding and parent trust
Modern careers require STEM readiness. A well-designed STEM Lab gives students the skills they need for future jobs.



NEP 2020 & CBSE ATL Alignment
Nexora STEM Labs follow the learning approach recommended in the National Education Policy (NEP 2020) and CBSE’s Atal Tinkering Lab (ATL) guidelines.
Outbound Links
- NEP 2020 official document: https://www.education.gov.in/nep-2020
- CBSE ATL / AIM official page: https://aim.gov.in/atl.php
These make learning more practical, creative, and research oriented.
Why Schools in Begusarai, Samastipur, Muzaffarpur, and Saharsa Choose Nexora
Schools across Bihar trust Nexora because of:
✔ Local Presence
Quick installation and strong support teams in all regions.
✔ Complete STEM Solutions
Robotics, coding, AI, IoT, and innovation kits included.
✔ NEP-Aligned Curriculum
Every activity supports inquiry, creativity, and problem-solving.
✔ Teacher Training
Nexora trains teachers to run the lab smoothly.
✔ Measurable Outcomes
Students create working models, robotics projects, and smart IoT solutions.
This makes Nexora the fastest-growing choice for STEM Labs in Bihar.
Features of Nexora STEM Labs
Benefits for CBSE, ICSE & State Board Schools
How Nexora Installs STEM Labs
Step 1: School Requirement Analysis
Detailed planning based on space and student strength.
Step 2: Lab Layout & Design
3D layout and equipment plan are provided.
Step 3: Installation (15-30 Days)
Complete setup with robotics kits, tools.
Step 4: Teacher Training or Posting on Nexora Payroll
Teachers receive full training for smooth lab operations.Nexora deploys trained teachers also.
Step 5: Maintenance & Support
Nexora provides year-long support, updates, and troubleshooting.
Step 6: Innovation Events
Schools receive access to exhibitions, competitions, and student showcases.
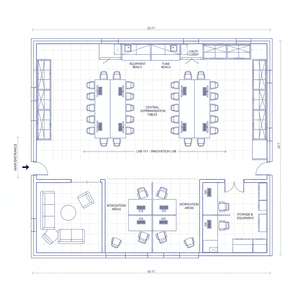
Lab Layouts



Why Nexora STEM Labs Stand Out
- NEP 2020 and ATL-compliant
- Affordable for all school categories
- Strong support in Bihar
- Future-ready curriculum
- Proven results in multiple schools
This is why Nexora is the preferred partner for STEM Labs in Bihar.
Call to Action for Schools in Bihar
If your school wants to set up STEM Labs in Bihar, Nexora provides the best NEP 2020 aligned and CBSE ATL-ready solution.
👉 Learn more about us: /about-us
👉 Talk to our STEM experts: /contact-us
👉 Explore our programs: /programs
Help your students become future innovators with Nexora STEM Labs.








